こんにちは!
株式会社ときわ不動産です。
本日、大村市では二十歳の集いがあってるようです。
雪の降る寒い日ではありますがこれもまた良い思い出となりそうですね。
新成人のみなさんおめでとうございます!
さて、本日は大村市向木場町にある建売住宅のご紹介です。
現在建築中となっております。
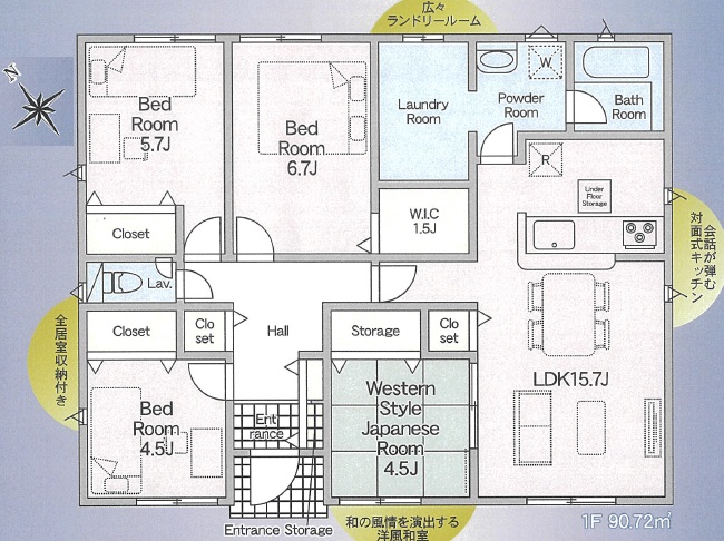
人気のオール電化仕様の平屋住宅になります。
車も4台~5台くらい駐車可能ですので来客があっても困りません。
※TVアンテナ・網戸・シャッター・面格子・フェンス・カーテンレール等は別途費用がかかります。
■価格:2,888万円
■間取:4LDK
■土地面積:196.25㎡(59.36坪)
■建物面積:90.72㎡(27.44坪)
物件の詳細はコチラをクリック→物件詳細


いつでもご案内致します!
お問合せお待ちしておりますm(__)m





