価格 |
2,888万円 |
||
|---|---|---|---|
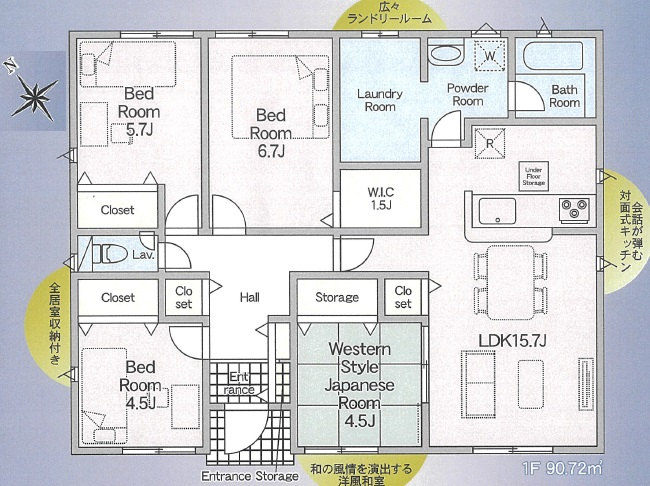
間取 |
4LDK |
築年月 |
2026/02(建築予定) |
建物面積 |
90.72m²(27.44坪) |
土地面積 |
196.25m²(59.36坪) |
所在地 |
大村市向木場町 |
||
周辺環境 |
向木場入口 停歩12分 |
お電話でのお問い合わせ
物件番号:2318
お電話でお問い合わせの際は、物件番号をお伝えください。
0957-52-3709
営業時間:平日 9:30 - 18:30 土曜 9:30 - 18:00 日・祝 10:00 - 17:30
定休日:年末年始・GW・お盆
ポイント
POINT
【スタッフのコメント】
◆向木場町の長閑な高台に平屋を新築します! 木場スマートインターまで車で3分♪ 長崎医療センターまで車で5分!
◆当該建物は耐震+制震の家「QUIE(クワイエ)」 制震装置SAFE365搭載、オウチを守ります!
◆家族と財産を守るために防犯カメラを設置します!
◆家事の動線がバッチリ♪ 料理や食器の片づけをしながら洗濯や家族の入浴チェックができます
◆洗面脱衣所の横に広いランドリールームを設けました♪ 室内干し専用でご利用いただけます
【周辺環境】
●旭が丘小学校まで(約1.2㎞)
●大村中学校まで(約1.6㎞)
●ひまわり認定こども園まで(約1.1㎞)
●ダイレックス木場店まで(約1.1㎞)
●ありやま小児科まで(約1.3㎞)
●長崎医療センターまで(約1.4㎞)
●エレナ久原店まで(約1.8㎞)
◆向木場町の長閑な高台に平屋を新築します! 木場スマートインターまで車で3分♪ 長崎医療センターまで車で5分!
◆当該建物は耐震+制震の家「QUIE(クワイエ)」 制震装置SAFE365搭載、オウチを守ります!
◆家族と財産を守るために防犯カメラを設置します!
◆家事の動線がバッチリ♪ 料理や食器の片づけをしながら洗濯や家族の入浴チェックができます
◆洗面脱衣所の横に広いランドリールームを設けました♪ 室内干し専用でご利用いただけます
【周辺環境】
●旭が丘小学校まで(約1.2㎞)
●大村中学校まで(約1.6㎞)
●ひまわり認定こども園まで(約1.1㎞)
●ダイレックス木場店まで(約1.1㎞)
●ありやま小児科まで(約1.3㎞)
●長崎医療センターまで(約1.4㎞)
●エレナ久原店まで(約1.8㎞)
物件詳細DETAIL
建物構造 |
木造アスファルトシングル葺 |
間取詳細 |
洋6.7、洋5.7、洋4.5、和4.5、LDK15.7 |
|---|---|---|---|
地上階 |
1階 |
駐車場 |
4台可 |
地目 |
宅地 |
用途地域 |
無指定 |
建ぺい率 |
60% |
容積率 |
200% |
現況 |
建設中 |
引渡時期 |
2026/02 下旬 |
セットバック |
建築確認番号 |
第R07SHC118776号 |
|
接道 |
南西 5m(幅員) 私道 位置指定有 13m(接面) |
諸費用 |
|
学区 |
旭が丘小学校 1,200m
大村中学校 1,600m |
私道面積 |
- |
特色/設備 |
★耐震+制震の家「QUIE(クワイエ)」 制震装置SAFE365搭載、フラット35S対象物件、10年保証、公営水道、公共下水道、オール電化、システムキッチン、カウンターキッチン、IHクッキングヒーター、1坪浴室、浴室乾燥機、洗髪洗面化粧台、温水洗浄便座、TVインターホン、ウォークインクローゼット、復層ガラス、省エネ給湯、防犯カメラ、駐車場3~4台可(車種によっては記載台数を駐車できない場合があります)、※TVアンテナ・網戸・シャッター・面格子・フェンス・カーテンレール等は別途見積りとなります |
||
取引態様 |
仲介 |
||
情報更新日 |
2026年01月14日 |
次回更新予定日 |
2026年01月15日 |
取引条件有効期限 |
2026年01月21日 |
※掲載されている物件データが現状と異なる場合は現状を優先します。
周辺地図MAP
株式会社ときわ不動産COMPANY
所在地 |
長崎県大村市西三城町15番地15 |
||
|---|---|---|---|
免許番号 |
長崎県知事免許(4)第3767号 |
||
会員 |
(公社)長崎県宅地建物取引業協会
(公社)全国宅地建物取引業協会
(公社)全国宅地建物取引業保証協会
(一社)全国賃貸不動産管理業協会
|
||
電話番号 |
0957-52-3709 |
FAX番号 |
0957-52-3046 |
営業時間 |
平日 9:30 - 18:30 土曜 9:30 - 18:00 日・祝 10:00 - 17:30 |
定休日 |
年末年始・GW・お盆 |

